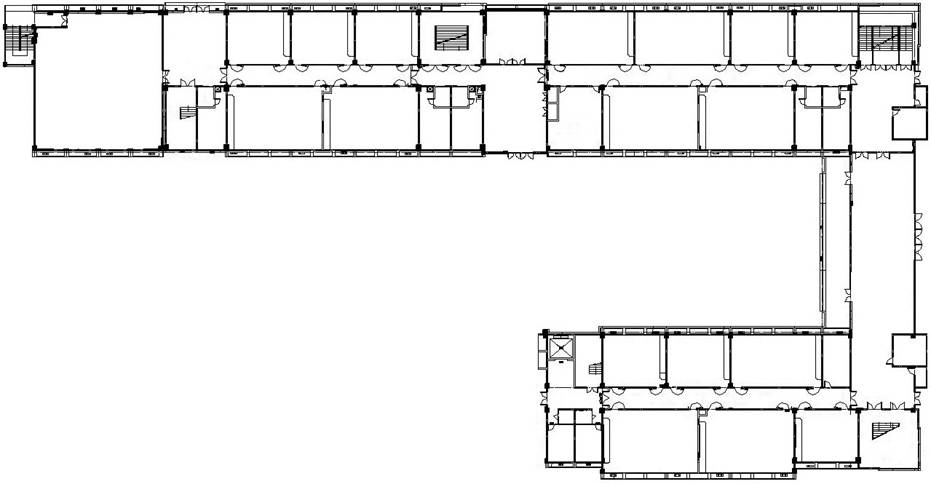
1号教学楼自助收费机示意图
→东
|
为自助缴费机位置 |
|
公共教室120 1118 |
 |
餐饮旅游学院教室 1119 |
餐饮旅游学院教室 1121 |
餐饮旅游学院教室 1123 |
餐饮旅游学院教室 1125 |
|
 |
|
|
|
|
|
|
|
|
餐饮旅游学院教室 1120 |
餐饮旅游学院教室 1122 |
餐饮旅游学院教室 1124 |
餐饮旅游学院教师办公室 1126 |
卫生间 |
|
|
 |
|
|
|
|
|
|
|
|
|
|
|
|
|
|
|
|
|
|
|
 |
|
|
公共教室220 1117 |
 |
公共教室 1116 |
公共教室 1114 |
公共教室120 1112 |
会计学院教室 1110 |
会计学院教室 1108 |
会计学院教室 1106 |
值班室 1101 |
|
学工办公室 1104 |
接待室 1102 |
|
 |
|
|
公共教室 1115 |
公共教室 1113 |
公共教室120 1111 |
 |
会计学院教室 1109 |
会计学院教室 1107 |
会计学院教室 1105 |
会计学院教室 1103 |
 |
|
↓南
2号教学楼自助收费机示意图
→东

↓南
自助缴费机操作流程
说明:输入学号(2016年学号前加16,2017级学号前加17,2018级学生以公布的学号为准)或身份证号码。
1.选择学费缴交

2.输入学号,选择查询年份

3.确认缴费的学生姓名,班级,要缴交的金额,需要部分缴费的学生(如助学贷款等)可更改缴费金额

4.选择读卡方式,带芯片的卡片或者绑定了applepay的可以选择“芯片卡,applepay”,只有磁条的信用卡或者储蓄卡选择磁条卡交易

芯片卡或者applepay放在机器的左下方非接感应区读卡

磁条卡放在机器右边的读卡器进行读卡

5.读卡成功后输入银行卡密码,输入完毕后按金属键盘上的确认键至下一步

6.缴费成功提示
